PBD

Structural Drafting and detailing project

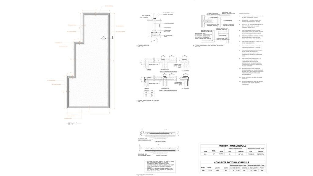
We delivered a complete BIM model for a modern residential property in the USA, ensuring accurate design coordination and clash-free construction documentation.

We delivered a complete BIM model for a modern residential property in the USA, ensuring accurate design coordination and clash-free construction documentation.

Location
USA

Scope of Work

  • Created 3D BIM model from 2D CAD drawings
  • Coordinated architectural, structural, and MEP elements
  • Applied LOD 300 standards for design development
  • Conducted clash detection and resolved conflicts

Deliverables

  • Revit-based BIM model (LOD 300)
  • Coordination drawings for architecture & structure
  • Clash report and resolution documentation
  • Final PDF sheets for client presentation

Category

  • BIM

Optional Fields (if theme supports)

  • Client: Private Residential Developer
  • Rating: ★★★★★

Ready To Work With Us?

We establish long-term business relationships with our clients and are committed to complete customer satisfaction. We would love to know about your next project.

Let's Collaborate!

Ready to take your projects to the next level? Get in touch with us today to discuss how our expert drafting, modeling, and BIM services can help your business succeed. We’re here to turn your vision into reality

Our Phone

+1 818 741 3899

Our MailBox

info@probuildingdesigner.com

Our Address:

15442 VENTURA BLVD., STE 201-663 SHERMAN OAKS, CALIFORNIA 91403

Start The Conversation Today!

Areas We Serve